Client Image
Client Image
Client Image
Client Image
Client Image
Client Image
Client Image
Client Image
Client Image
Client Image
Client Image
Client Image
Client Image
Client Image
Client Image
Client Image
Client Image
Client Image
Client Image
Client Image
Client Image
Client Image
Client Image
Client Image
Client Image
Client Image
Client Image
Client Image
Client Image
Client Image
Client Image
Client Image
Client Image
Client Image
Client Image
Client Image
Client Image

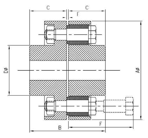
Pin & Bush Coupling

PIN & BUSH COUPLINGS For little misalignment of two shafts, pin bush coupling is used.

Pin Bush Coupling is engineered from protected type of flange coupling. This type of coupling has pins which work as coupling bolts. Over the pins rubber or leather bushes are used. The pins are tightened by nuts with one of the flange and on the other flange kept loose. The internal construction of two hubs of the coupling has dissimilarity in its nature. This coupling is normally used where small parallel misalignment, axial or angular misalignment are found in the connecting shafts. In this coupling rubber bushes absorb vibration and shocks at the time of operation. This type of coupling is used in machines and couple electric motors.

Boson Pin Bush Couplings guarantees transmission of high speed in such a way, that couplings have extraordinary shock absorption ability due to its manufacturing pattern. The rubber bushes, unaltered by water, atmospheric condition and dust allows drive in either way and requires no adjustment and lubrication after fixing.

 

 

Pin and Bush Copulings image

  • Robust Construction
  • Sturdiness
  • Excellent Finish
  • Dimensionally Accurate

Coupling
Size BFG
PB1
PB2
PB2A
PB3
PB4
PB4A
PB5
PB6
PB6A
PB6B
PB7
PB7A
PB8
PB8A
PB8B
PB9
PB9A
PB10
PB10A
PB11
LOAD CAPACITY
Torque
in kgf-m
H.P. Per
100rpm
7.80 1.10
31.60 4.40
63.30 7.40
63.30 8.90
84.70 11.88
126.50 17.74
170.00 23.76
240.50 33.73
299.00 41.92
360.00 50.52
423.50 59.40
530.00 74.28
592.00 83.16
740.87 103.93
889.80 124.82
1012.45 142.74
1353.10 189.81
1470.00 206.20
1839.95 258.11
2424.05 340.01
Max.
R.P.M.
6200
5200
4500
3700
3000
3000
2700
2400
2400
2400
2000
1950
1900
1700
1600
1500
1450
1350
1250
1100
BORE
Max. Pilot
30 12.5
32 12.5
42 16.0
50 16.0
65 20.0
65 20.0
75 25.0
95 45.0
95 45.0
95 45.0
115 60.0
120 60.0
130 65.0
135 65.0
140 70.0
150 80.0
160 90.0
170 100.0
180 110.0
190 120.0
No. of
Pins
3
4
6
4
4
6
6
8
10
12
12
14
16
18
12
13
15
16
17
20
DIMENSION IN M.M.
E F
96 83 40 44 3 60
115 103 50 52 3 70
130 107 52 62 3 70
160 109 52 70 5 115
190 129 62 92 5 115
190 129 62 92 5 115
225 161 78 105 5 115
225 185 90 135 5 115
225 185 90 135 5 115
225 185 90 135 5 115
290 237 116 170 5 115
300 237 166 180 5 130
310 257 126 196 5 130
340 369 132 200 5 130
360 278 136 210 6 200
390 318 156 225 6 200
410 338 166 240 6 200
440 370 182 255 6 200
480 390 192 270 6 212
530 450 222 285 6 212

Client Testimonials

We have been using Boson made Gear Couplings for past 3 years and found satisfactory results.

Hindalco

Client Logo

The Rubber Bellows made by Boson are excellent product and giving us great service for last 2 years.

Jindal

Client Logo

The Ball Valves that manufactured by Boson have provided excellent service to us for last 1.5 years.

Hira Group

Client Logo

The Thruster Brakes designed by Boson that used by us have provided certain satisfying results for last 3 years.

Jai Balaji Group

Client Logo

We are using the Boson made Pulley for past 1 year and it is providing satisfying service.

Balasore Alloys Limited

Client Logo
WIN iPAD

Win iPAD Just Fill In The Form.

    Name

    Email

    Company

    Phone

    Message

    Contact Form

      Name

      Email

      Company

      Phone

      Message